推薦產品
河南華東起重機械設備公司
服務熱線:400 086 9590
公司:河南華東起重機械設備有限公司
聯系人:賈經理
聯系電話:13903802779
地址:河南新鄉市封丘縣起重機工業園區
當前位置: 起重機 > 集團簡介 > 榮譽證書
手推龍門架
時間:2024-05-14來源:起重機廠家瀏覽次數:1
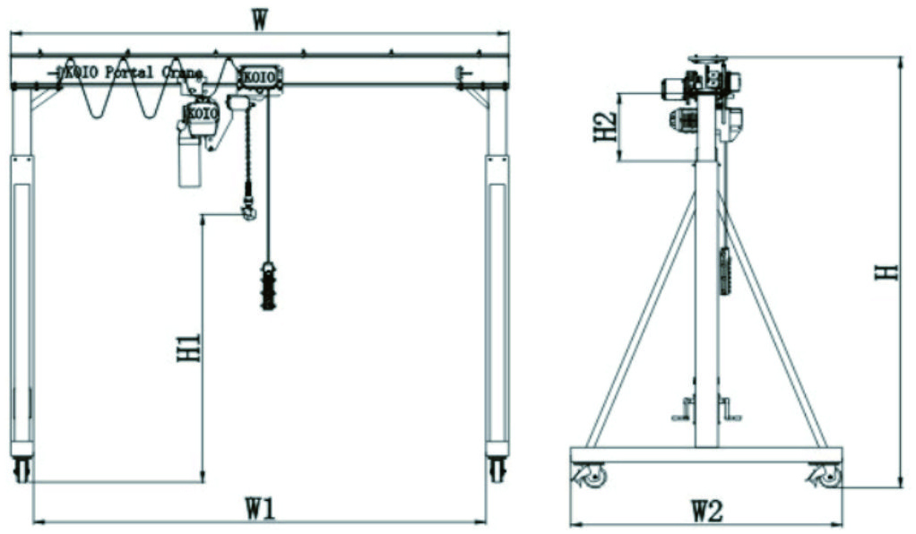
移動龍門架規格參數表
| 型號參數 | 起重量(t) | 設備寬度(mm) | 設備高度(mm) | 使用高度(mm) | 可調范圍(mm) | ||
|---|---|---|---|---|---|---|---|
| W | W? | W? | H | H? | H? | ||
| GT5-0.5 | 0.5 | 4000-8000 | 3800 | 1500 | 4000 | 3300 | 不可調 |
| GT5-01 | 1 | 4000-8000 | 3760 | 1500 | 4000 | 3200 | 不可調 |
| GT5-02 | 2 | 4000-8000 | 3700 | 1500 | 4000 | 3050 | 不可調 |
| GT5-03 | 3 | 4000-8000 | 3700 | 1500 | 4000 | 2900 | 不可調 |
| GT5-05 | 5 | 4000-8000 | 3640 | 1500 | 4000 | 2700 | 不可調 |


產品簡介
移動龍門架是根據中、小工廠公司、日常生產需要搬運設備、倉庫進出貨,起吊維修重型設備及材料運輸的需要,開發出來的新型起重機。適用于制造模具、汽修工廠、礦山、工地及需要起重場合。尤其適用于車間設備的安裝、搬運、調試。
移動龍門架可各個方位移動性可快速拆卸安裝,占地面積小,用微型汽車就可轉移到另一個場地安裝使用。寬度、高度可分級調節,鋼架構設計合理,能承受從1,000-5,000KG重量。
移動龍門架是企業進行工程作業中經常使用的一款起重設備,在很多領域都有廣泛的應用,是很多企業進行起重行業優先考慮的起重設備。
移動龍門架可以在很大程度上提高工作效率,可以給企業生產節省很多人力成本,降低投資成本,使企業經濟效益獲得很大的提高。
移動龍門架規格
1、在地面上各個方位移動的龍門架,帶剎車承重輪可在地面上移動,適合在地面上起吊物品。
2、用鋼軌固定安裝在樓板面或梁上,通過電動或人力葫蘆,實現起重機械化。可減少人力,降低生產運營成本,提高工作效率。力福汀起重機廠家可根據客戶的現場情況定做不同的產品。
3、可按照客戶現場要求定制。
產品特點
河南鴻升移動龍門架優勢:
1、主梁可采用一根標準的工字鋼或H型鋼制作,支腿部分一般可采用方管、矩形管等型材制作。
2、在地面上各個方位移動的龍門架,帶剎車承重輪可在地面上移動,適合在地面上起吊物品。
3、可減少人力,降低生產運營成本,提高工作效率。河南鴻升起重機可根據客戶的現場情況定做不同的產品。




















