Product Series
推薦產品
河南華東起重機械設備公司
服務熱線:400 086 9590
公司:河南華東起重機械設備有限公司
聯系人:賈經理
聯系電話:13903802779
地址:河南新鄉市封丘縣起重機工業園區
當前位置: 起重機 > 起重機文章
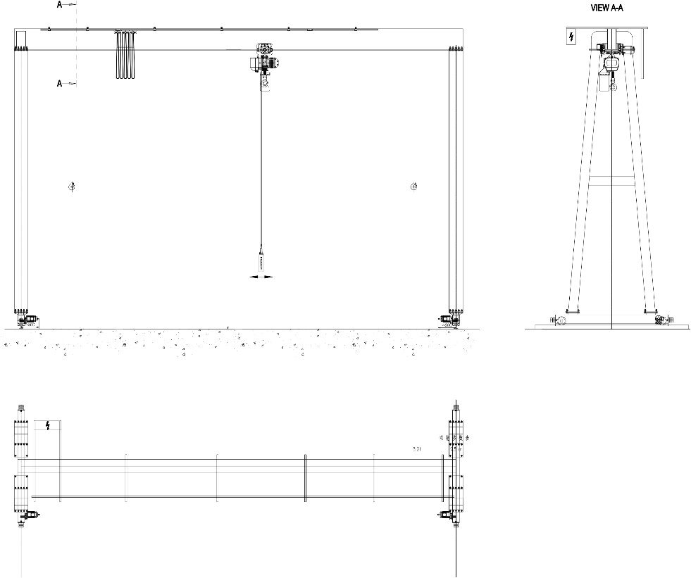
歐式MH型電動葫蘆門式起重機
時間:2024-04-23來源:起重機廠家瀏覽次數:1
MH型電動葫蘆門式起重機產品:
性能穩定,品質優良
門式起重機作為重要的物流設備,停產或有故障所造成的損失是無法估量的。河南鴻升起重機秉承產品一貫的優良品質,將是您在港口、堆場物流領域物料搬運的選擇。

優化設計,結構緊湊
匯聚行業經驗,結合先進技術,我們的所有創新都是漸進式的,都是基于嚴格的產品型式試驗和成功的應用經驗之后推出的,所以客戶可以放心的選擇我們產品。我們的產品旨在為客戶提高生產效率,降低維護成本,延長使用壽命,提高客戶的投資回報,為客戶創造價值。
MH型電動葫蘆門式起重機結構圖紙:

下一篇:LX型電動單梁懸掛起重機
推薦文章:




















