Product Series
推薦產品
河南華東起重機械設備公司
服務熱線:400 086 9590
公司:河南華東起重機械設備有限公司
聯系人:賈經理
聯系電話:13903802779
地址:河南新鄉市封丘縣起重機工業園區
當前位置: 起重機 > 起重機文章
KBK流水線物料搬運起重機 柔性組合自立起重機
時間:2024-05-09來源:起重機廠家瀏覽次數:1
產品說明
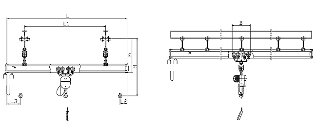
概述:鴻升起重生產的JKBK柔性輕型組合式懸掛起重機的起重量在125kg-2000kg。JKBK柔性輕型組合式懸掛起重機包括JKBK-D單軌懸掛起重機、JKBK-LD單梁懸掛起重機、JKBK-LS雙梁懸掛起重機、JKBK-LSS伸縮梁懸掛起重機、JKBK-LM堆垛機等各種形式,應用范圍廣,尤其適用于現代化生產輸送線。
JKBK柔性單梁懸掛起重機產品特點:
1、安裝尺寸合理、自重輕 JKBK 柔性單梁懸掛起重機由KBK標準組件組成,能使您快速可靠地實現特定區域內的物料輸送以及各種部件的精準定位。
2、經濟 JKBK 單梁懸掛起重機可以簡單地懸掛于建筑屋頂或上部結構上,起重機軌道無需額外的支撐,無論是服務于車間的部分或者全部,都可以簡單可靠地安裝,成本較低。
3、安全可靠 由于設備自重輕、運行小車操作輕便,JKBK單梁懸掛起重機可以輕松地實現手動移動,能夠快速可靠地輸送那些粗大笨重的工件。
JKBK單梁懸掛起重機:
1.起重量可達:1000kg
2.跨度可達:6m
JKBK柔性輕型組合式懸掛起重機的產品特點概述如下:
1、可靠性好、穩定性高JKBK柔性輕型組合式懸掛起重機系統的組成部件全部是標準模塊,可以保證大批量生產,因而系統十分可靠;系統模塊的主體是三種規格的冷軋型材,強度大、剛性好、自重輕,保證了系統的穩定性。
2、適應力強JKBK懸掛起重機系統可根據工廠各工位的需要,靈活地設計安裝。從定點運送到高準確度的多點、多節拍的自動化輸送線,都能隨意組合而成。可用于新設計的廠房,也可用于系統的改造和延伸。
3、安裝方便、經濟平穩?JKBK懸掛起重機系統的安裝調試很方便,JKBK型材及各標準模塊之間只需用螺栓連接即可使用,可節省工廠的空間和面積,從而降低能耗,提高企業效益。系統可以手動操作,也可以實現自動、半自動操作,運行方便。JKBK柔性輕型組合式懸掛起重機系列產品:JKBK-LD單梁懸掛起重機JKBK-D單軌懸掛起重機JKBK-LS雙梁懸掛起重機JKBK-LSS伸縮梁懸掛起重機JKBK-LM堆垛機JKBK彎軌系統
產品參數






















