Product Series
推薦產品
河南華東起重機械設備公司
服務熱線:400 086 9590
公司:河南華東起重機械設備有限公司
聯系人:賈經理
聯系電話:13903802779
地址:河南新鄉市封丘縣起重機工業園區
當前位置: 起重機 > 起重機文章
輪胎式龍門吊、手推式龍門吊
時間:2024-05-30來源:起重機廠家瀏覽次數:1
輪胎式龍門吊簡介
輪胎式龍門吊是把起重機構安裝在加重型輪胎和輪軸組成的底盤上的一種全回轉式起重機,其上部構造與履帶式起重機基本相同,為了保證安裝作業時機身的穩定性,起重機設有四個可伸縮的支腿。在平坦地面上可用支腿進行小起重量吊裝及吊物低速行駛。
輪胎式龍門吊圖片



輪胎式龍門吊性能特點
輪胎式龍門吊可調節跨度,架體包括立柱,立柱上部固定有頂梁,每根立柱的底端連接有輪胎行走系統,頂梁上設置有水平伸縮機構,所述的水平伸縮機構是在頂梁的一端設有水平伸縮腔,水平伸縮腔內套裝有水平伸縮桿,水平伸縮桿與水平伸縮腔的外表面分別與一個水平伸縮液壓缸的兩端連接.為了能夠調節龍門吊的高度,立柱上設置有垂直伸縮機構,所述的垂直伸縮機構是在立柱上設有垂直伸縮腔,垂直伸縮腔內套裝有垂直伸縮桿,垂直伸縮桿與垂直伸縮腔的外表面分別與一個垂直伸縮液壓缸的兩端連接.通過水平伸縮機構和垂直伸縮機構可改變龍門吊的跨度和高度.
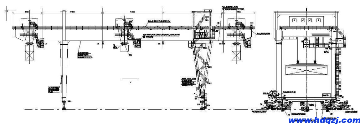
輪胎式龍門吊結構技術參數圖

手推式龍門吊簡介
輕型手推龍門吊,包含上支撐臂、下支撐臂、斜支撐臂、橫梁、地梁、萬向輪、上連接板、下連接板、加固板、手拉葫蘆、電動葫蘆;上支撐臂下端與斜支撐臂下端連接,上支撐臂上端、斜支撐臂上端通過上連接板與橫梁連接;兩條下支撐臂底端通過地梁連接,上端通過高低不同的下連接板和加固板連接;橫梁上設有掛扣,上支撐臂底端設有轉向扣,下連接板上設有拉扣。
手推式龍門吊圖片



手推式龍門吊性能特點
對于手推式龍門吊價格來說,通常在1-10萬左右不等,具體還需要根據廠家、選型來定,因為不同廠家、型號設備原材料、生產方式,以及銷售渠道,都有不一樣的,所以價格稍存在差異。
河南鴻升起重機有限公司不斷打磨自身生產工藝,走心鑄造各類產品,確保設備高質量,也都是直接面向用戶,可享受出廠價優惠,可點擊報價咨詢,在線一鍵獲取優惠價,及更多相關資訊,隨時有銷售經理為您服務。
手推式龍門吊結構技術參數圖





















