推薦產品
河南華東起重機械設備公司
服務熱線:400 086 9590
公司:河南華東起重機械設備有限公司
聯系人:賈經理
聯系電話:13903802779
地址:河南新鄉市封丘縣起重機工業園區
當前位置: 起重機 > 起重產品 > 門式起重機
MHB型電動葫蘆半門式起重機單梁半門式起重機
MHB型電動葫蘆半門式起重機單梁半門式起重機廠家直銷: MHB型電動葫蘆半門式起重機多少錢一臺?聯系MHB型電動葫蘆半門式起重機生產商報價!專業MHB型電動葫蘆半門式起重機廠家直銷供應,請根據MHB型電動葫蘆半門式起重機圖片、MHB型電動葫蘆半門式起重機型號、MHB型電動葫蘆半門式起重機規格參數,聯系我們獲取購買MHB型電動葫蘆半門式起重機價格!<BR />MHB型電動葫蘆半門式起重機為半定制機械,需根據您的現場條件和需求確定軌道尺寸和其他參數。
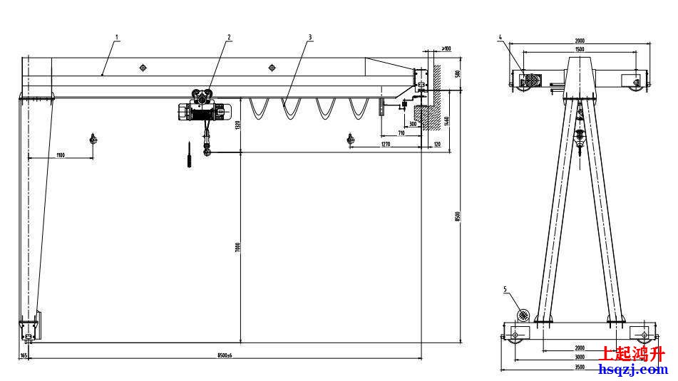
MHB型電動葫蘆半門式起重機與CD、、MD、等型號的電動葫蘆配套使用,是一種有軌運行的中小型門式起重機。MHB型含義為單梁半門式起重機,其適用起重量:3T、5T、10T、16t、20T;跨度:7.5m、9M、19M、22.5米;起升高度:6M、9M、12M、18M;工作制度適用A3~A5,工作環境溫度為一25℃~4。℃范圍內。
MHB型半門式起重機結構圖紙
MHB型電動葫蘆半門式起重機操縱形式有無線遙控器、有線地面操縱和操縱室操縱。電動葫蘆半門式起重機為一般用途起重機,多用于一般機械制造、裝配車間和倉庫等場所,用來搬運和裝卸物料,常用于室外、露天場所。
MHB型電動葫蘆半門式起重機不宜在易燃、易爆的介質中或具有很大濕度腐蝕性氣體的場所工作。也不適用于吊運熔化的金屬、有毒物和易燃物的工作 。

加微信好友

微信小程序

微信公眾號
400-086-9590
139-0380-2779
- 售后服務
-























