Product Series
推薦產品
河南華東起重機械設備公司
服務熱線:400 086 9590
公司:河南華東起重機械設備有限公司
聯系人:賈經理
聯系電話:13903802779
地址:河南新鄉市封丘縣起重機工業園區
當前位置: 起重機 > 起重機文章
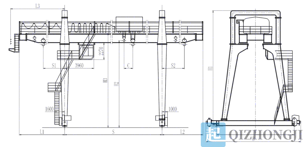
MG型10t雙主梁吊鉤門式起重機參數MG型10噸通用門式起重機尺寸
時間:2024-01-18來源:起重機廠家瀏覽次數:1
10噸通用門式起重機參數尺寸
MG型10t雙主梁吊鉤門式起重機主要技術參數,10噸通用門式起重機主要外形尺寸,MG型10t雙主梁通用門式起重機技術參數表,MG型10t雙主梁吊鉤門式起重機外形尺寸表,10噸雙梁門式起重機主要技術參數及尺寸
10噸通用門式起重機圖片
10噸通用門式起重機介紹
MG型雙梁吊鉤門式起重機屬雙主梁通用門式起重機,也稱10噸雙梁龍門吊,由橋架、大車運行機構、小車、電氣設備等部分構成。10t門式起重機是按照GB/T14406-1993《通用門式起重機》設計制造,起重量20t,工作環境為-20~+40℃,工作級別A5、A6兩種。
10噸通用門式起重機技術參數
MG型雙梁吊鉤門式起重機規格:10T/5T等;
跨度:13M、15M、17M、18M、19M、20M、22M、23M、30M等;
起升高度:6M、9M、12M、16M、24M、30M等;
還可根據用戶使用需求非標設計定做定制起重機。
10噸通用門式起重機結構圖
10噸通用門式起重機外形尺寸表
| 起重量Cap(t) | 10t | |||||
| 工作制度Duty | A5 | |||||
| 跨度Span(m) | 18 | 22 | 26 | 30 | ||
|
最大起升高度(m) Max.Lifting Height |
主鉤 | 工Un | ||||
| 副鉤 | ||||||
| 速度(m/min) Speed | 起升Hoisting | 主鉤 | 8.52 | |||
| 副鉤 | ||||||
| 小車運行Traversing | 42.7 | |||||
| 大車運行Traversing | 37.8 | |||||
| 電動機型號 Motor | 起升Hoisting | 主鉤 | YZR180L-6/15 | |||
| 副鉤 | ||||||
| 小車運行Traversing | YZR132M1-6/2.2 | |||||
| 大車運行Traversing | YZR160M2-6/2X7.5 | YZR160L-/2X11 | ||||
|
主要尺寸(mm) Main Dimension |
S1 | 5000 | 6000 | 7000 | 8000 | |
| S2 | 5000 | 6000 | 7000 | 8000 | ||
| C | ||||||
| L | 32000 | 38000 | 45000 | 51000 | ||
| L1 | 7000 | 8000 | 9500 | 10500 | ||
| L2 | 7000 | 8000 | 9500 | 10500 | ||
| L3 | 6403 | 7403 | 8403 | 9403 | ||
| H1 | 13694 | 13814 | 13964 | 14120 | ||
| H2 | 10245 | 10445 | 10575 | 10741 | ||
| H3 | 11295 | 11495 | 11625 | 11791 | ||
| W | 8000 | |||||
| B | 9712 | |||||
| 重量(t)weight | 小車重量Trolley rignt | 3.4 | ||||
| 起重機總重Total wigh | 49.9 | 54.7 | 66.5 | 73.94 | ||
|
最大輪壓(KN) Max.Wheel loading |
220 | 236 | 263 | 280 | ||
|
薦用鋼軌(Kg/m) Rail Recommended |
38,43,50 | |||||
| 電源Power Supply | 3AC 380V 50HZ | |||||
-
28
2025-07
吊鉤門式起重機的操作要點
吊鉤門式起重機是一種廣泛應用于港口、貨場、建筑工地等場所的起重設備,其運行過程涉及多個環節和操作要點,下面龍門吊廠家小編從運行原理、操作流程、安全注意事項等方面進行詳細介紹:一、運行原理吊鉤門式起重機主要由門架、大車運行機構、起重小車(含起升機構和運行機構)、電氣系統等部分組成。其運行原理基于電動機驅動,通過減速器、聯軸器等傳動裝置,將動力傳遞至卷筒,使鋼絲繩卷繞或釋放,從而實現吊鉤的升降運動。同...詳細
-
25
2025-06
雙梁吊鉤門式起重機的安裝程序、門式起重機焊接修復流程
雙梁吊鉤門式起重機的安裝程序 1、**確定地梁輪在軌道兩側同一端面上的支點位置。根據上下洞口尺寸,將支腿與槽鋼連接牢固,再與下橫梁組裝,再組裝平衡梁和小車。裝配采用高強度螺栓,雙螺母鎖緊。 2、**,將組裝好的平衡梁小車吊到預定位置,車輪垂直,固定牢固。以連接槽鋼中心的支腿開孔為吊點,用汽車吊將一端連接的地梁構件吊起,緩慢地放在平衡梁上。地梁和平衡梁用螺栓緊固,用手拉葫蘆和鋼絲繩固定...詳細
-
27
2025-02
A型吊鉤門式起重機適用于哪些場景或行業?**裝置有哪些,如何確保**操作?
A型吊鉤門式起重機適用于以下場景或行業: 工廠和制造業:A型吊鉤門式起重機常用于工廠、生產線和制造業中,用于搬運重物、裝卸貨物等操作。 倉儲和物流:在倉儲和物流行業中,A型吊鉤門式起重機常用于貨物的裝卸、堆垛等作業。 建筑工地:在建筑工地上,A型吊鉤門式起重機可以用于吊裝建筑材料、設備等重物,提高施工效率。 港口和碼頭:在港口和碼頭領域,A型吊鉤門式起重機通常用于集裝箱的裝卸作業。 制藥...詳細
-
26
2025-02
MDG型單主梁吊鉤門式起重機的安裝和維護要求是什么
MDG型單主梁吊鉤門式起重機的安裝和維護要求通常包括以下幾個方面: 安裝要求: 安裝前需要進行地基的檢查和準備,確保地基承載能力滿足要求。 安裝時需要按照制造商提供的詳細安裝說明進行,確保吊鉤門式起重機的整體結構穩固可靠。 安裝過程中需要嚴格按照相關標準和規范進行,以確保**性和穩定性。 電氣連接: 進行電氣連接前需要確保電氣線路符合國家標準和建筑電氣設計規范,避免出現電氣問題。 ...詳細
-
26
2025-02
MDG型單主梁吊鉤門式起重機適用于哪些行業和工作場景
MDG型單主梁吊鉤門式起重機適用于許多不同的行業和工作場景,包括但不限于以下幾個方面: 工業制造業:MDG型單主梁吊鉤門式起重機常見于工廠、制造車間等工業領域。它可用于運輸、裝卸和搬運重型設備、零部件、原材料等。 建筑工地:在建筑工地中,MDG型單主梁吊鉤門式起重機通常用于吊裝、搬運和安裝建筑材料,如鋼筋、混凝土構件、建筑框架等。 港口和船舶領域:吊鉤門式起重機在港口和船舶領域被廣泛應用。...詳細
-
24
2025-02
MDG型單主梁吊鉤門式起重機的主要特點是什么?
MDG型單主梁吊鉤門式起重機的主要特點包括以下幾個方面: 結構簡單緊湊:它由主梁、大臂、小車、電氣系統等組成,結構簡單緊湊,占地面積小。 起重能力強:這種起重機通常具有較高的起重能力,可根據需要進行定制,*大起重量可以達到幾十噸。 適應性廣泛:它適用于各種工業領域和場合,如工廠、倉庫、碼頭、建筑工地等,可以用于貨物的裝卸、搬運和堆垛作業。 運行平穩可靠:MDG型起重機采用**的驅動系統和...詳細




















