Product Series
推薦產品
河南華東起重機械設備公司
服務熱線:400 086 9590
公司:河南華東起重機械設備有限公司
聯系人:賈經理
聯系電話:13903802779
地址:河南新鄉市封丘縣起重機工業園區
當前位置: 起重機 > 起重機文章
BP系列杠桿式板坯夾鉗BP2型電動杠桿式板坯夾鉗
時間:2024-01-18來源:起重機廠家瀏覽次數:1
板坯夾鉗介紹
電動杠桿式板坯夾鉗主要由吊耳、開閉機構、上橫梁、鉗體等組成。開閉機構控制鉗腿的張開和閉合,依靠板坯自重與鉗齒之間產生的摩擦力鎖緊板坯,由卷揚系統提升下橫梁,使鉗爪張開,松開板坯。該夾鉗每次可夾取一塊或多快高溫(1000°C)板坯,夾高度極限尺寸隨夾取板坯的寬度而變化。該夾鉗的特點是耐高溫、運行可靠、載重量大、維修方便。主要用于鋼廠搬運和堆垛板坯已廣泛用于國內有關鋼廠和港口。
板坯夾鉗說明
-
產品名稱:電動杠桿式板坯夾鉗
-
別名別稱:板坯吊具夾具
-
型號規格:BP2型
-
所屬類別:起重夾鉗夾具
-
產品產地:河南新鄉江蘇泰州
-
非標定制:承接非標制造
-
是否現貨:定制生產
-
生產周期:7~15天
-
供貨范圍:全國
-
送達方式:自提或代辦托運
-
是否安裝:安裝另計
板坯夾鉗圖冊
板坯夾鉗參數
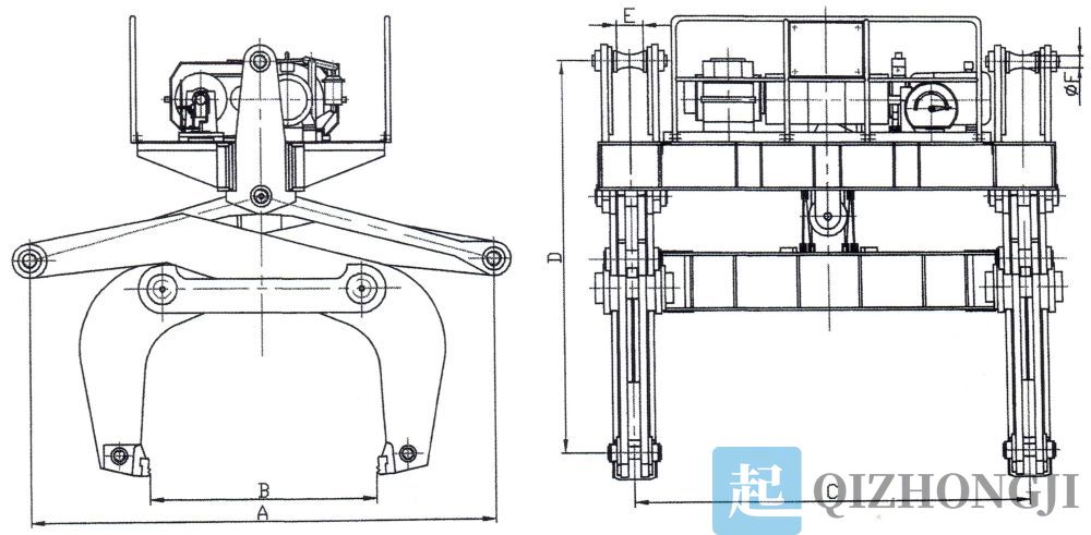
電動杠桿式板坯夾鉗外形尺寸圖
電動杠桿式板坯夾鉗技術參數表
| 起重量(t) | 規格尺寸(mm) | 自重(kg) | 電機功率(kw) | |||||
| A | B | C | D | E | F | |||
| 16 | 2900 | 500~1700 | 3000 | 3000~4500 | 200 | 100 | 8300 | 17 |
| 32 | 3200 | 500~1850 | 3000 | 3100~4800 | 210 | 110 | 9700 | 17 |
| 60 | 3500 | 500~1850 | 3000 | 3400~5300 | 230 | 130 | 1710 | 22 |
| 80 | 3900 | 700~2150 | 3000 | 3400~6200 | 270 | 150 | 2200 | 22 |
板坯夾鉗廠家
電動杠桿式板坯夾鉗屬于起重吊具夾具的一種,生產廠家還為用戶提供國標、非標專用機械式、電動、液壓夾鉗夾具、抓斗抓具、吊鉤吊具等起重吊具的設計制造和安裝維修,更多產品與零部件配套廠家貨源產地、型號規格、技術參數、材質工藝、產品特性用途選型、工作原理和常見故障排除與安全注意事項請聯系我們咨詢。
-
18
2024-01
BP系列板坯夾鉗BP5型單吊耳自動開閉板坯夾鉗
板坯夾鉗介紹 單吊耳自動開閉板坯夾鉗主要由吊耳、自動開閉機構、上橫梁、下橫梁、鉗體、定距裝置等組成該夾鉗的特點是重量輕、效率高、耐高溫、維修簡單。現已廣泛用于鋼廠、倉庫、碼頭等場合搬運和堆垛板坯。 板坯夾鉗說明 產品名稱:單吊耳自動開閉板坯夾鉗 別名別稱:鋼...詳細
-
18
2024-01
BP系列平移式板坯夾鉗BP1型電動平移式板坯夾鉗
板坯夾鉗介紹 電動平移式板坯夾鉗主要由滑輪組、板坯測厚儀、導筒連接座、上橫梁、吊鉤組、懸掛梁、復位裝置、開閉梁、夾鉗開閉機構、鉗臂等部分組成。該夾鉗特點是夾取準確、效率高、夾緊力大、安全可靠、技術先進、適用性強。可夾取1000°C左右的矩形及梯形板坯。該夾鉗已被廣泛用于全國各大鋼廠的板坯搬運、倉庫堆垛、汽車和火車的裝卸工作。 板坯夾鉗說明...詳細
-
18
2024-01
BP系列杠桿式板坯夾鉗BP2型電動杠桿式板坯夾鉗
板坯夾鉗介紹 電動杠桿式板坯夾鉗主要由吊耳、開閉機構、上橫梁、鉗體等組成。開閉機構控制鉗腿的張開和閉合,依靠板坯自重與鉗齒之間產生的摩擦力鎖緊板坯,由卷揚系統提升下橫梁,使鉗爪張開,松開板坯。該夾鉗每次可夾取一塊或多快高溫(1000°C)板坯,夾高度極限尺寸隨夾取板坯的寬度而變化。該夾鉗的特點是耐高溫、運行可靠、載重量大、維修方便。主要用于鋼廠搬運和堆垛板坯已廣泛用于國內有關鋼...詳細
-
18
2024-01
BP系列梯形板坯夾鉗BP3型自動開式梯形板坯夾鉗
板坯夾鉗介紹 自動開式梯形板坯夾鉗主要由滑輪組、驅動機構、聯接座、上橫梁、吊鉤組、自動開閉機構、下橫梁、鉗體、板坯信號裝置等部分組成。該夾鉗的特點是技術先進、造型美觀、功能齊全,能可靠夾取梯形和矩形高溫板坯。已廣泛應用于鋼廠、倉庫、港口等場合,搬運和堆垛板坯。 板坯夾鉗說明 產品名稱:自動開式梯形板坯夾鉗...詳細
-
15
2022-08
板坯搬運起重機板坯夾鉗起重機技術參數
板坯搬運起重機具有板坯夾鉗(或電磁吸盤)裝置的起重機。用于軋制或連鑄板坯的搬運和堆垛。 工作級別:A6 電源:AC,380V,50Hz 括號內數字,為動力開閉式板坯夾鉗。 板坯搬運起重機技...詳細
-
11
2022-08
YB型板坯夾鉗起重機YB型板坯搬運起重機技術參數
YB型板坯夾鉗起重機,YB型板坯搬運起重機,板坯搬運起重機,主要適用于鋼鐵公司連鑄板坯的吊運作業,也可用于成品庫吊運鋼板或吸吊鋼板的切邊。主梁采用偏軌箱型梁結構,大車運...詳細




















