Product Series
推薦產品
河南華東起重機械設備公司
服務熱線:400 086 9590
公司:河南華東起重機械設備有限公司
聯系人:賈經理
聯系電話:13903802779
地址:河南新鄉市封丘縣起重機工業園區
當前位置: 起重機 > 起重機文章
YWZ(3B)系列電力液壓鼓式制動器YWZ型液壓鼓式抱閘/剎車
時間:2024-01-23來源:制動器廠家瀏覽次數:1
制動器介紹
YWZ3B電力液壓鼓式制動器型號有:YWZ3B-160/18、YWZ3B-160/25、YWZ3B-200/18、YWZ3B-200/25、YWZ3B-250/25、YWZ3B-250/45、YWZ3B-315/25、YWZ3B-315/45、YWZ3B-315/90、YWZ3B-400/45、YWZ3B-400/90、YWZ3B-400/125、YWZ3B-500/90、YWZ3B-500/125、YWZ3B-500/180、YWZ3B-630/125、YWZ3B-630/180、YWZ3B-630/320、YWZ3B-710/180、YWZ3B-710/320、YWZ3B-800/320型等,鼓式制動器廣泛用于起重機械、運輸、冶金、港口、碼頭、建筑機械等機械驅動裝置的減速或制動。根據用戶要求,可生產各種常開、防爆及非標制動器產品。
制動器說明
產品名稱:YWZ(3B)電力液壓鼓式制動器
別名別稱:抱閘/剎車
型號規格:YWZ(3B)型
所屬類別:液壓鼓式制動器
產品產地:河南新鄉長垣/焦作武陟
非標定制:可定制
是否現貨:部分現貨
生產周期:10~20天
包裝形式:無
供貨范圍:全國
送達方式:自提或快遞托運
是否安裝:安裝另計
售后方式:一年保修
制動器圖冊

制動器參數
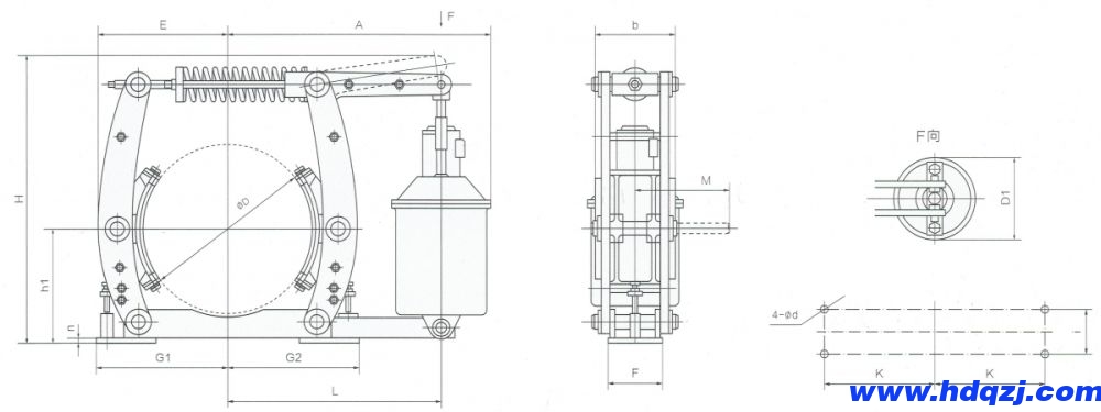
YWZ3B電力液壓鼓式制動器外形尺寸圖

YWZ3B電力液壓鼓式制動器技術參數表
| 制動器型號 | 匹配推動器 | 制動力矩 (N.m) | 退距 | A | b | D1 | d | E | F | G1 | G2 | H | h1 | i | K | L | M | n | 重量 |
| YWZ3B-160/18 | 160 | 80-140 | 0.5 | 345 | 65 | 137 | 14 | 157 | 90 | 155 | 155 | 370 | 132 | 55 | 130 | 275 | 145 | 6 | 25 |
| YWZ3B-160/25 | 112-180 | 0.8 | 354 | 154 | 418 | 37 | |||||||||||||
| YWZ3B-200/18 | 200 | 100-125 | 0.8 | 346 | 80 | 137 | 14 | 190 | 90 | 180 | 180 | 403 | 160 | 55 | 145 | 277 | 145 | 8 | 28 |
| YWZ3B-200/25 | 112-225 | 1.0 | 379 | 154 | 445 | 277 | 43 | ||||||||||||
| YWZ3B-250/25 | 250 | 140-225 | 1.25 | 408 | 100 | 154 | 18 | 210 | 100 | 205 | 205 | 480 | 190 | 65 | 180 | 331 | 190 | 10 | 58 |
| YWZ3B-250/45 | 250-400 | 420 | 178 | 571 | 70 | ||||||||||||||
| YWZ3B-315/25 | 315 | 180-280 | 1.25 | 553 | 125 | 154 | 18 | 247 | 110 | 245 | 275 | 545 | 225 | 80 | 220 | 433 | 220 | 10 | 74 |
| YWZ3B-315/45 | 315-630 | 565 | 178 | 576 | 433 | 78 | |||||||||||||
| YWZ3B-315/90 | 630-1250 | 581 | 210 | 699 | 433 | 147 | |||||||||||||
| YWZ3B-400/45 | 400 | 400-630 | 1.6 | 594 | 160 | 178 | 22 | 304 | 140 | 310 | 310 | 675 | 280 | 100 | 270 | 505 | 275 | 12 | 125 |
| YWZ3B-400/90 | 800-1250 | 610 | 210 | 715 | 140 | ||||||||||||||
| YWZ3B-400/125 | 1120-1800 | 632 | 254 | 855 | 167 | ||||||||||||||
| YWZ3B-500/90 | 500 | 1000-1600 | 1.6 | 697 | 200 | 210 | 22 | 368 | 180 | 365 | 365 | 790 | 335 | 130 | 325 | 592 | 330 | 16 | 202 |
| YWZ3B-500/125 | 1400-2250 | 719 | 254 | 855 | 220 | ||||||||||||||
| YWZ3B-500/180 | 2000-3150 | 719 | 254 | 930 | 237 | ||||||||||||||
| YWZ3B-630/125 | 630 | 1800-2800 | 2 | 830 | 250 | 254 | 27 | 478 | 220 | 450 | 450 | 1015 | 425 | 170 | 400 | 703 | 400 | 20 | 335 |
| YWZ3B-630/180 | 2500-4000 | 830 | 254 | 1015 | 358 | ||||||||||||||
| YWZ3B-630/320 | 4800-7100 | 891 | 375 | 1035 | 425 | ||||||||||||||
| YWZ3B-710/180 | 710 | 3100-4500 | 2.0 | 982 | 280 | 254 | 27 | 520 | 240 | 500 | 550 | 1110 | 475 | 190 | 450 | 855 | 452 | 22 | 475 |
| YWZ3B-710/320 | 5000-8000 | 2.0 | 1045 | 375 | 506 | ||||||||||||||
| YWZ3B-800/320 | 800 | 8000-12000 | 2.5 | 1170 | 320 | 375 | 27 | 595 | 280 | 570 | 750 | 1285 | 530 | 210 | 520 | 1012 | 510 | 30 | 716 |
制動器符合標注
YWZ3B電力液壓鼓式制動器安裝尺寸和制動力矩參數符合GB6333-86標準,技術條件符合JB/T6406-2006標準。
制動器特點:
性能安全可靠、制動平穩,動作頻率高。
制動器使用條件:
環境溫度-20℃~45℃;
周圍工作環境中不得有易燃、易爆及腐蝕性氣體,否則應采用防腐型產品;
空氣相對濕度不大于90%;
使用地點的海拔高度符合GB755-2008。
制動器型號意義

YWZ3B電力液壓鼓式制動器生產廠家還為用戶提供YWZB、YWZ4B、YWZ8、YWZ9(YWZ5)、YWZ13、YW、YW-L、YW-E、TWZ(B)、TYWZ2、JZ、MW(Z)、ZWZA、ZWZ2、ZWZ3鼓式制動器,廠用防爆、廠用BZES隔爆封閉式制動器、礦用DYW防爆制動器,YPZ2ⅠⅡⅢ、YPZ2ⅣⅤⅥ、DAZ、SE/SH、SB/SBD、YZ、DCPZ、BNM、QP12.7等盤式制動器,YLBZ(液壓輪邊制動器)、YFX(電力液壓防風鐵楔制動器)、YJGQ(液壓夾軌器)等防風制動器,ED1YT1系列電力液壓推動器、ZED交流直流兩用電力液壓推動器、BYT1BEd系列隔爆式電力液壓推動器、EDX系列電力液壓推動器等驅動裝置(液壓罐、制動器電機)、制動瓦塊、制動器架子等成套零部件及相關產品的設計制造(定制)和配件批發零售、安裝修理維修等服務,更多國標/非標/專用工業制動器廠家品牌、技術參數、安裝尺寸圖紙、價格請咨詢客服。
-
23
2024-01
EYWZ系列電力液壓鼓式制動器EYWZ電力液壓鼓式剎車抱閘
制動器產品介紹 EYWZ系列電力液壓鼓式制動器型號規格有:EYWZ-200/E23、EYWZ-200/E50、EYWZ-250/E50、EYWZ-315/E50、EYWZ-315/E80等。主要用于起重機大車行走機構的制動和皮帶運輸機的工作制動,該系列制動器為兩級制動式制動 裝置,第二級的制動時間可通過單向調速閥進行調整,制動平穩,安全可靠。制動器產品說明產品名稱:電力液壓鼓式制動器別...詳細
-
23
2024-01
YWP系列電力液壓鼓式制動器YWP電力液壓鼓式剎車抱閘
制動器產品介紹 YWP系列電力液壓鼓式制動器型號規格有:YWP160-220、YWP200-220、YWP200-300、YWP250-220、YWP250-300、YWP250-500、YWP315-300、YWP315-500、YWP315-800、YWP400-500、YWP400-800、YWP400-1250、YWP500-800、YWP500-1250、YWP500-200...詳細
-
23
2024-01
YWZ(12)系列電力液壓鼓式制動器YWZ(12)電力液壓鼓式剎車抱閘
制動器產品介紹 YWZ12系列電力液壓鼓式制動器型號規格有:YWZ12-200/23S、YWZ12-200/30S、YWZ12-250/23S、YWZ12-250/30S、YWZ12-250/50S、YWZ12-315/30S、YWZ12-315/50S、YWZ12-315/80S、YWZ12-400/50S、YWZ12-400/80S、YWZ12-400/121S、YWZ12-500...詳細
-
23
2024-01
YWZ(10)系列電力液壓鼓式制動器YWZ(10)電力液壓鼓式剎車抱閘
制動器產品介紹 YWZ10系列電力液壓鼓式制動器型號規格有:YWZ10-200/E23、YWZ10-200/E30、YWZ10-250/E23、YWZ10-250/E30、YWZ10-250/E50、YWZ10-315/E30、YWZ10-315/E50、YWZ10-315/E80、YWZ10-400/E50、YWZ10-400/E80、YWZ10-400/E121、YWZ10-500...詳細
-
23
2024-01
YW-E二級電力液壓鼓式制動器YW-E型電力液壓鼓式剎車抱閘
制動器產品介紹 YW-E二級電力液壓鼓式制動器型號規格有:YW-E200/E23、YW-E200/E30、YW-E200/E50、YW-E250/E50、YW-E315-E50、YW-E315-E80、YW-E400-E80型等,鼓式制動器廣泛用于起重機械、運輸、冶金、港口、碼頭、建筑機械等機械驅動裝置的減速或制動。根據用戶要求,可生產各種常開、防爆及非標制動器產品。 制...詳細
-
23
2024-01
YW-L型電力液壓鼓式制動器YW-L型電力液壓鼓式剎車抱閘
制動器產品介紹 YW-L型電力液壓鼓式制動器型號規格有:YW-L-200/E23、YW-L-200/E30、YW-L-250/E23、YW-L-250-E30、YW-L-250-E50、YW-L-315-E23、YW-L-315-E30、YW-L-315-E50、YW-L-315-E80、YW-L-400-E30、YW-L-400-E50、YW-L-400-E80、YW-L-400-E...詳細




















