Product Series
推薦產品
河南華東起重機械設備公司
服務熱線:400 086 9590
公司:河南華東起重機械設備有限公司
聯系人:賈經理
聯系電話:13903802779
地址:河南新鄉市封丘縣起重機工業園區
當前位置: 起重機 > 起重機文章
QD型10/3噸電動雙梁橋式起重機技術參數表
時間:2024-04-15來源:起重機廠家瀏覽次數:1
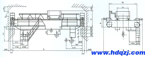
QD型10/3噸電動雙梁橋式起重機方案圖

QD型10/3噸電動雙梁橋式起重機技術規格參數:
| 工作級別 | A5 | A6 | |||||||||||||||||
| 跨度 | m | 10.5 | 13.5 | 16.5 | 19.5 | 22.5 | 25.5 | 28.5 | 31.5 | 10.5 | 13.5 | 16.5 | 19.5 | 22.5 | 25.5 | 28.5 | 31.5 | ||
| 超重機總量 | t | 15.4 | 16.4 | 18.8 | 20.9 | 23.7 | 28 | 30.6 | 33.5 | 17.1 | 18.1 | 20.5 | 22.7 | 25.5 | 29 | 31.6 | 34.5 | ||
| 輪壓 | KN | 104 | 112 | 118 | 132 | 134 | 142 | 151 | 162 | 105 | 113 | 120 | 135 | 136 | 145 | 154 | 165 | ||
| 起升高度 | m | 16/18 | 16/18 | ||||||||||||||||
| 速度 | 起重機運行 | m/min | 69 | 71 | 92.75 | 93.74 | |||||||||||||
| 小車運行 | 44.2 | 44.2 | |||||||||||||||||
| 主起升 | 9.8 | 12.6 | |||||||||||||||||
| 副起升 | 18.0 | 18.0 | |||||||||||||||||
| 電動機 | 起升 | 主 | 型號 | YZR180L-6/17 | YZR200L-6/22 | ||||||||||||||
副 | YZR160L-6/13 | YZR160L-6/13 | |||||||||||||||||
| 小車運行 | YZR132M2-6/4 | YZR132M2-6/4 | |||||||||||||||||
| 大車運行 | YZR132M2-6/4 | YZR160M-6/6.3 | YZR160M1-6/2x5.5 | YZR160M2-6/2x7.5 | |||||||||||||||
| 主要尺寸 | B | mm | 5700 | 6200 | 5700 | 6200 | |||||||||||||
W | 4100 | 4600 | 4100 | 4600 | |||||||||||||||
H | 1923 | 1926 | 1929 | 1934 | 1937 | 1940 | 1943 | 1946 | 1923 | 1926 | 1929 | 1934 | 1937 | 1940 | 1943 | 1946 | |||
A | 745 | 745 | |||||||||||||||||
H3 | 323 | 321 | 323 | 321 | |||||||||||||||
F | 26 | 176 | 546 | 326 | 478 | 678 | 778 | 928 | 26 | 176 | 546 | 326 | 478 | 678 | 778 | 928 | |||
| 薦用軌道 | 43kg/m 50kg/m QU80 QU100 | ||||||||||||||||||




















