Product Series
推薦產品
河南華東起重機械設備公司
服務熱線:400 086 9590
公司:河南華東起重機械設備有限公司
聯系人:賈經理
聯系電話:13903802779
地址:河南新鄉市封丘縣起重機工業園區
當前位置: 起重機 > 起重機文章
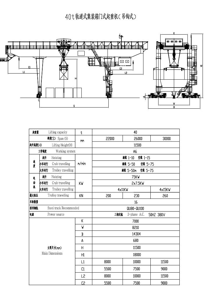
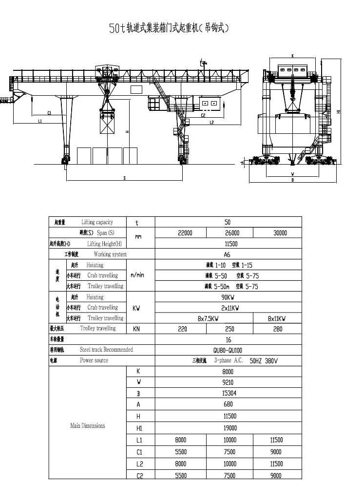
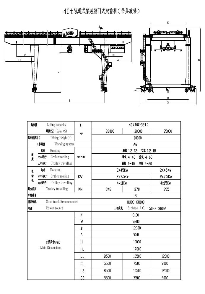
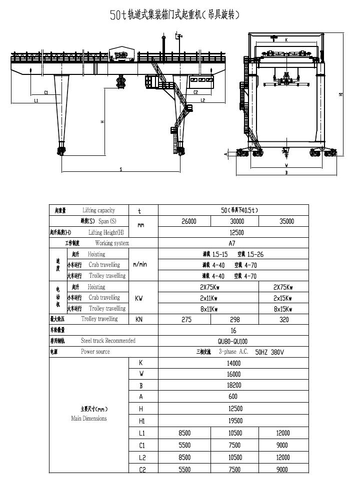
軌道式集裝箱門式起重機
時間:2024-05-10來源:起重機廠家瀏覽次數:1
軌道式集裝箱門式起重機的結構與用途
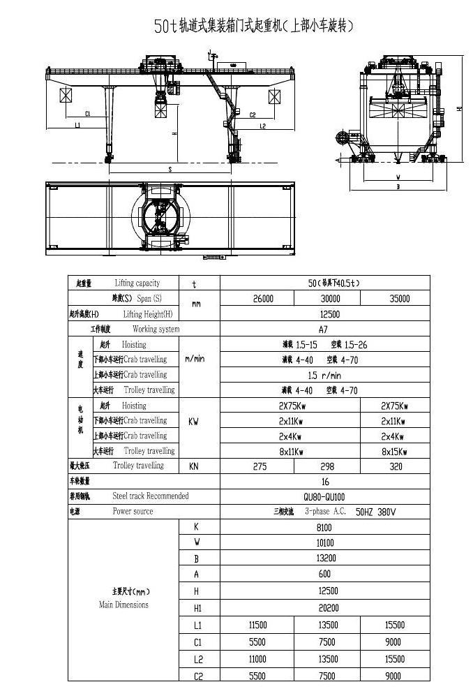
軌道式集裝箱門式起重機主要用于集裝箱鐵路轉運場和大型集裝箱儲運場的集裝箱卸載、搬運和堆放。軌道式集裝箱門式起重機由主梁、剛性和柔性門腿、運行小車、起升機構、大車運行機構、電氣系統、操作駕駛室等組成。軌道式集裝箱門式起重機一般要求門腿內的寬度方向凈空較大,故采用門腿上部敞開成U形和門腿上部連通,并架設小車檢修架。軌道式集裝箱門式起重機能夠裝卸20′、40′、45′國際標準集裝箱。起重量一般36t、40.5t兩種。根據場地、集裝箱儲運工藝流程及裝卸的車輛的不同;跨度有26m、30m、35m之分;懸臂有無懸臂、單懸臂和雙懸臂等結構形式之分;起升高度有堆三過四、堆四過五之分;上部小車旋轉與下部吊具旋轉之分。
軌道式集裝箱門式起重機的操作和控制
軌道式集裝箱門式起重機由司機在駕駛室操縱聯動臺實現操作。駕駛室一般懸掛在小車下方而隨小車運行。駕駛室聯動臺上可以實現對起重機的全部操作。亦可在大車運行側操作大車運行,以方便起重機臨時移位需要。當在大車運行側操作時,與主操作聯動臺實現電氣聯鎖。
軌道式集裝箱門式起重機的驅動控制,目前常用的為交流變頻調速系統。控制系統多采用通訊控制,集裝箱內部多采用有線方式,特點為速度快,可靠性高。并可以選裝起重機綜合管理系統,與外部控制室采用無線方式進行數據傳輸,通過配合邏輯控制對起重機的操作系統進行不問斷監控、故障診斷和數據集收集。
?軌道式集裝箱門式起言機的設計與制造規范和標準
起重機設計規范:GB/T3811-2008
起重機械安全規程:GB/6067.1-2010
軌道式集裝箱門式起重機:GB/T19683-2005
港口設備工程質量檢驗評定標準:JT/T244-2008
軌道式集裝箱門式起重機安全規程:JT/T566-2004
橋式和門式起重機制造及軌道安裝公差:GB/T10183-1988
?軌道式集裝箱門式起重機的技術特點
1、能量回饋裝置能有效的節約能源。
2、集裝箱吊具空間八繩防播機構,有效防止吊具的搖擺和扭轉。
3、智能化的故障檢測系統,能更好地對設備進行故障分析與預警。
4、分離式電氣房與運行小車,減輕了小車運行負荷,降低了能耗。
5、大車行走自動糾偏系統,降低了大車啃軌問題,提高設備使用壽命。
6、智能化的安全監控與管理系統,更好地適用于貨場安全監控與自動化管理的需要。




























