Product Series
推薦產品
河南華東起重機械設備公司
服務熱線:400 086 9590
公司:河南華東起重機械設備有限公司
聯系人:賈經理
聯系電話:13903802779
地址:河南新鄉市封丘縣起重機工業園區
當前位置: 起重機 > 起重機文章
壁行式旋臂起重機技術參數
時間:2024-05-28來源:起重機廠家瀏覽次數:1
壁行吊基本介紹:
壁行式旋臂起重機(簡稱:壁行吊,又稱壁行式懸臂吊、壁行式旋臂吊、壁行式懸臂起重機)。是在壁柱式懸臂起重機基礎上改進的一種新型物料吊運設備。壁行式旋臂吊沿著安裝在廠房的水泥柱上的行走道軌可做縱向運動,同時電動葫蘆又可完成沿懸臂的橫向運動以及垂直方向的起吊。
壁行吊應用場合:
壁行式旋臂起重機的使用場合為跨度較大、建筑高度較大的車間或倉庫,靠近墻壁附近處吊運作業較頻繁時Z適合。壁行式旋臂起重機極大的擴展了作業范圍,更為有效的利用了廠房空間,使用效果更理想??蓮V泛利用于廠礦、車間的生產線、裝配線及倉庫、碼頭等場合的重物吊運。
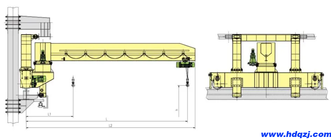
壁行式旋臂起重機方案圖

壁行式旋臂起重機參數表
型號 | BQ1 | BQ2 | BQ3 | BQ5 |
| 額定起重量 t | 1 | 2 | 3 | 5 |
| Z大幅度 m | 5-12 | 5-10 | 4-8 | 4-7 |
| Z小幅度 m | 1 | 1.1 | 1.2 | 1.3 |
| 垂直輪距 m | 2.5 | 2.5 | 3 | 3 |
| 上水平輪軸距 m | 2 | 2.5 | 3.3 | 4 |
| 下水平輪軸距 m | 2 | 2.5 | 3.3 | 4 |
| 大車輪距 m | 4 | 4.5 | 5 | 5.5 |
| 起升速度 m/min | 8 | 8 | 8 | 8 |
| 大車運行速度 m/min | 20 | 20 | 20 | 20 |
| 小車運行速度 m/min | 20 | 20 | 20 | 20 |
| 起升高度 m | 用戶自定義 | |||




















