Product Series
推薦產品
河南華東起重機械設備公司
服務熱線:400 086 9590
公司:河南華東起重機械設備有限公司
聯系人:賈經理
聯系電話:13903802779
地址:河南新鄉市封丘縣起重機工業園區
當前位置: 起重機 > 起重機文章
YWZ(B)型廠用防爆制動器YWZ(B)型航車行吊防爆制動器
時間:2024-01-24來源:防爆制動器廠家瀏覽次數:1
制動器產品介紹
廠用防爆制動器符合標準
★制動器安裝尺寸和制動力矩參數符合DIN15435和JB/T7021-2006標準。技術要求符合JB/T6406-2006標準。
制動器使用條件
★環境溫度-20℃~40℃;
★空氣相對濕度:不大于98%(+25℃時);
★爆炸性氣體環境或可燃性粉塵環境;
★無顯著搖動和劇烈振動的環境
制動器工作原理
★制動器為直流盤式結構,斷電制動,它由盤式制動器、制動軸及防爆外殼組成;
★當電磁繞組得電后,電磁力克服正壓力將摩擦片脫開,制動器軸可運轉,反之,失電后彈簧正壓力推動銜鐵盤,摩擦片剎車制動。
制動器產品說明
產品名稱:廠用防爆制動器
別名別稱:抱閘/防爆抱閘
型號規格:YWZ(B)型
所屬類別:工業防爆制動器
產品產地:和那新鄉、焦作
是否定制:是
是否現貨:部分現貨
生產周期:3~10天
供貨范圍:全國
送達方式:自提或物流托運
是否安裝:安裝另議
售后方式:一年保修
發貨地區:河南長垣
制動器產品圖冊

制動器相關參數
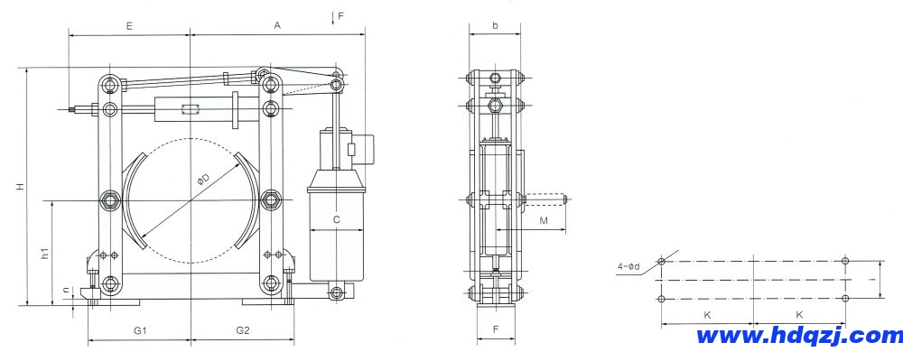
廠用防爆制動器外形尺寸圖

廠用防爆制動器技術參數及外形尺寸表
| 推動器型號 | 匹配推動器 | 制動力矩(N.m) | 退距(mm) | A | b | C | D | d | E | F | G1 | G2 | H | h1 | 1 | K | M | n | 重量 (Kg) |
| YWZB-100/B18 | BYT1-18Z/2 | 40 | 0.6 | 269 | 70 | 137 | 100 | 13 | 125 | 75 | 125 | 125 | 384 | 100 | 40 | 110 | 138 | 6 | 25 |
| YWZB-150/B25 | BYT1-25Z/4 | 100 | 0.6 | 307 | 90 | 154 | 150 | 17 | 173 | 100 | 170 | 170 | 437 | 140 | 60 | 150 | 138 | 8 | 33 |
| YWZB-200/B25 | BYT1-25Z/4 | 200 | 0.7 | 347 | 90 | 154 | 200 | 17 | 210 | 100 | 195 | 195 | 440 | 170 | 60 | 175 | 156 | 10 | 42 |
| YWZB-300/B25 | BYT1-25Z/4 | 320 | 0.7 | 447 | 140 | 154 | 300 | 22 | 281 | 130 | 280 | 280 | 592 | 240 | 80 | 250 | 200 | 12 | 73 |
| YWZB-300/B45 | BYT1-45Z/5 | 630 | 0.7 | 459 | 140 | 178 | 300 | 22 | 281 | 130 | 280 | 280 | 600 | 240 | 80 | 250 | 200 | 10 | 80 |
| YWZB-400/B45 | BYT1-45Z/6 | 1000 | 0.8 | 564 | 180 | 178 | 400 | 22 | 370 | 180 | 360 | 360 | 735 | 320 | 130 | 325 | 265 | 12 | 130 |
| YWZB-400/B90 | BYT1-90Z/8 | 1600 | 0.8 | 580 | 180 | 210 | 400 | 22 | 370 | 180 | 360 | 360 | 740 | 320 | 130 | 325 | 265 | 12 | 160 |
| YWZB-400/B125 | BYT1-125Z/10 | 2200 | 0.8 | 632 | 160 | 254 | 400 | 22 | 370 | 180 | 360 | 360 | 850 | 320 | 130 | 325 | 271 | 12 | 167 |
| YWZB-500/B90 | BYT1-90Z/8 | 2500 | 0.8 | 670 | 200 | 210 | 500 | 22 | 440 | 200 | 415 | 415 | 890 | 400 | 150 | 380 | 310 | 16 | 210 |
| YWZB-500/B125 | BYT1-125Z/10 | 2650 | 0.8 | 775 | 200 | 210 | 500 | 22 | 440 | 200 | 415 | 415 | 885 | 400 | 150 | 380 | 310 | 16 | 220 |
| YWZB-500/B180 | BYT1-180Z/10 | 3000 | 0.8 | 692 | 200 | 254 | 500 | 22 | 440 | 200 | 415 | 415 | 940 | 400 | 150 | 380 | 310 | 16 | 235 |
| YWZB-600/B90 | BYT1-90Z/8 | 3200 | 0.8 | 805 | 240 | 210 | 600 | 26 | 555 | 220 | 505 | 520 | 1082 | 475 | 170 | 475 | 390 | 18 | 400 |
| YWZB-600/B180 | BYT1-180Z/12 | 5000 | 0.8 | 827 | 240 | 254 | 600 | 26 | 555 | 220 | 505 | 520 | 1082 | 475 | 170 | 475 | 390 | 18 | 430 |
| YWZB-700/B180 | BYT1-180Z/12 | 8000 | 0.8 | 957 | 280 | 254 | 700 | 34 | 705 | 270 | 580 | 600 | 1225 | 550 | 200 | 540 | 585 | 25 | 500 |
| YWZB-800B180 | BYT1-180Z/12 | 10000 | 0.8 | 1094 | 320 | 254 | 800 | 34 | 772 | 320 | 677 | 697 | 1417 | 600 | 240 | 620 | 510 | 25 | 720 |
| YWZB-800/B320 | BYT1-320Z/12 | 12500 | 0.8 | 1155 | 320 | 375 | 800 | 34 | 772 | 320 | 677 | 697 | 1417 | 600 | 240 | 620 | 675 | 25 | 885 |
| 推動器附件功能表 | 型號意義 | |
| 附加功能代號 | 表示意義 | ![]() |
| E1 | 上升機械式行程開關 | |
| E2 | 下降機械式行程開關 | |
| EB | 感應式行程開關 | |
廠用防爆制動器制動器貨源產地生產廠家還為用戶提供YWZB、YWZ3B、YWZ8、YWZ9(YWZ5)、YWZ4B、YW、YW-L、YW-E、TWZ(B)、YWZ13、YWZ2、MW(Z)、JZ、ZWZA、ZWZ2、ZWZ3鼓式制動器,礦用DYW隔爆型制動器、廠用BZES隔爆封閉式制動器,YPZ2ⅠⅡⅢ、YPZ2ⅣⅤⅥ、DAZ、SH、SE、YZ、DCPZ、BNM、SB/SBD等盤式制動器,QP系列氣動鉗盤式制動器、YLBZ液壓輪邊制動器、YFX液壓防風鐵楔制動器、YJGQ(液壓夾軌器)等防風制動器,ED1YT1系列電力液壓推動器、ZED交流直流兩用電力液壓推動器、BYT1BEd系列隔爆式電力液壓推動器、EDX系列電力液壓推動器等驅動裝置(液壓罐、制動器電機)、制動瓦塊、制動器架子等成套零部件及相關產品的設計制造(定制)和配件批發零售、安裝修理維修等服務。更多制動器的設計制造安裝規范、認證標準、結構形式、材質工藝、工作原理、防爆等級、產品特性、制動力矩/退距、額定電流、通電持續率、功率、型號規格、技術參數、安裝使用注意事項說明、常見問題故障排除與維護保養重點以及出廠價格等請聯系客服咨詢。
-
24
2024-01
YWZ(B)型廠用防爆制動器YWZ(B)型航車行吊防爆制動器
制動器產品介紹廠用防爆制動器符合標準★制動器安裝尺寸和制動力矩參數符合DIN15435和JB/T7021-2006標準。技術要求符合JB/T6406-2006標準。制動器使用條件★環境溫度-20℃~40℃;★空氣相對濕度:不大于98%(+25℃時);★爆炸性氣體環境或可燃性粉塵環境;★無顯著搖動和劇烈振動的環境制動器工作原理★制動器為直流盤式結構,斷電制動,它由盤式制動器、制動軸及防爆外殼組成;★...詳細
-
24
2024-01
BZES系列廠用隔爆封閉式制動器BZES封閉式防爆制動器
制動器產品介紹廠用BZES隔爆封閉式制動器使用條件★環境溫度-20℃~40℃;★空氣相對濕度:不大于98%(+25℃時);★爆炸性氣體環境或可燃性粉塵環境;★無顯著搖動和劇烈振動的環境;★防爆等級Exd II CT4。廠用BZES隔爆封閉式制動器工作原理★制動器為直流盤式結構,斷電制動,它由盤式制動器、制動軸及防爆外殼組成;★當電磁繞組得電后,電磁力克服正壓力將摩擦片脫開,制動器軸可運轉,反之,失...詳細
-
22
2024-01
DYW系列礦用隔爆型制動器DYW型礦用防爆制動器
防爆制動器產品介紹DYW系列隔爆型制動器符合標準★主要應用于煤礦工況環境機械減速或制動,安裝尺寸和中心高與原YWZ5、YWZ9、YW等規格的電力液壓鼓式制動器一樣;★DYW與BYWZ5安裝尺寸一樣,執行的技術標準不同,DYW執行由安標國家礦用產品安全標志中心審查確定的標準,不僅推動器隔爆有煤礦安標證書,制動器整機防爆也有煤礦安標證書;★隔爆性能符合GB3836-2010,技術要求符合JB/T640...詳細





















